Vámospércs jó részén 5 szoba nappalis családi ház eladó!

2504 Nyomtatás Ajánlás Facebook

Eladó Családi Ház Vámospércsen - 5 Szoba Jó Állapot, Alacsony Fenntartás!

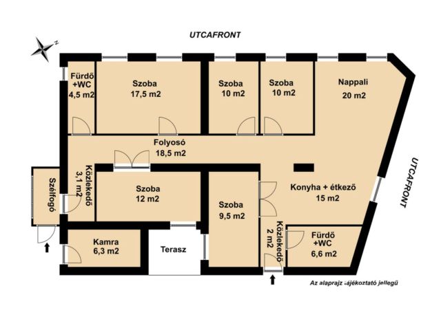
Álmai otthonát keresi egy csendes, mégis központi helyen? Fedezze fel ezt a nagyon masszív 5 szoba nappalis, dupla komfortos családi házat Vámospércs szívében! A 140 m²-es lakótérrel rendelkező ingatlan tökéletes választás nagyobb családok számára, akár 2 generációnak is tökéletesen alkalmas!

**Főbb Jellemzők:**
- **5 szoba** és **1 tágas nappali** biztosítja a kényelmes mindennapokat.
- **Amerikai konyhás** kialakítás, amely az étkezéseket igazán élvezetessé teszi.
- **2 fürdőszoba** a zavartalan reggelekért.
- **Új nyílászárók** és **szúnyoghálók** minden ablakon.
- **Terasz**, ahol kellemesen töltheti el a naplementéket.
- **Alacsony fenntartás** a modern energetikai megoldásoknak köszönhetően.
- **Két külön bejárat** Két generációnak is tökéletes.
- **Új villamoshálózat** a biztonság érdekében.

A közel 500 m²-es telek rengeteg lehetőséget kínál a szabadtéri tevékenységekre. A **zöld övezet** garantálja a friss levegőt és a békét. Az udvari **gépjárműbeálló lehetőség** kényelmes parkolást biztosít.

Az ingatlan egy **csendes utcában** található, de a belváros közelsége miatt minden helyi szolgáltatás könnyen elérhető. Tökéletes választás azoknak, akik egy nyugodt, barátságos környezetben keresik új otthonukat.

Ne hagyja ki ezt a kiváló ajánlatot! Érdeklődjön még ma, és tegye meg az első lépést új élete felé!

További információkért és megtekintésért keressen bizalommal!
TRIPSÓ TIBOR
+36 30 942 5373
Prémium ingatlanértékesítő
Városi Ingatlaniroda
Debrecen

Tripsó Tibor
PRÉMIUM

Tripsó Tibor

10 éve a Városi Ingatlaniroda tagja
Ingatlanértékesítő
Debrecen
+36 (30) 942 5373
Észrevétel a hirdetéssel kapcsolatban
Egy ingatlanos naplója