Új építésű családi ház Siófok-Sóstón

7349 Nyomtatás Ajánlás Facebook

Kedves Érdeklődő!

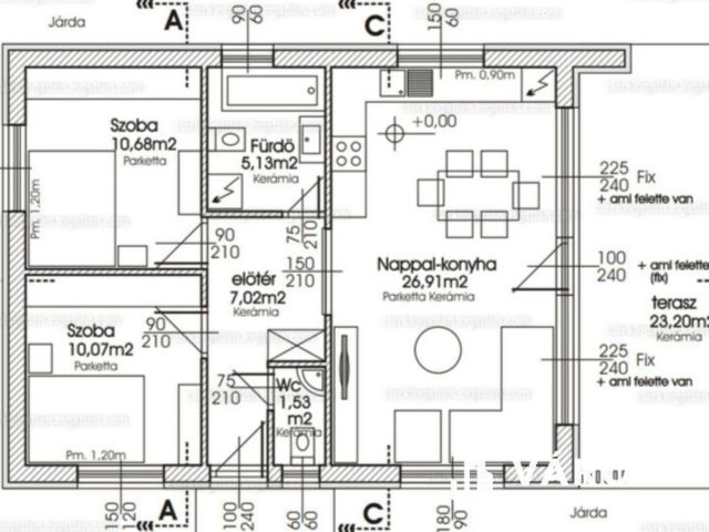
Siófok Sóstó városrészében kínálok eladásra egy kulcsrakész állapotban lévő családi házat, amely 10 perces sétatávolságra helyezkedik el a sóstói strandtól, és a Pusztatorony tértől. A 400 m²-es telken épülő ingatlan 62 m² lakótérrel és a nappalihoz közvetlenül kapcsolódó 23 m²-es teraszkapcsolattal rendelkezik.

A képeken a látványtervek és az előző ütemben elkészült házak láthatóak referenciaként.

Az ingatlan elosztása kiváló, az alábbi helyiségek alkotják: amerikai konyhás nappali (teraszkapcsolattal), 2 hálószoba, 1 fürdőszoba és egy külön wc. Köszönhetően a prémium anyagok felhasználásának és a magas műszaki tartalomnak rendkívül alacsony a fenntartási költsége. A fűtését hőszivattyú biztosítja (padlófűtéses hőleadással), de alternatív megoldásként egy inverteres klíma is az új tulajdonos rendelkezésére áll. A műanyag hőszigetelt nyílászárók elektromos alumíniumredőnnyel és rovarhálóval lesznek ellátva.

A parkosított és öntözőrendszerrel ellátott kertben pedig könnyen elérhetjük a friss levegőt és egy kis szabadtéri időtöltést. Az udvarban több gépjármű számára is kültéri parkolóhely kerül kialakításra, amely a vételár részét képezi!

Ne hagyja ki ezt az egyedülálló lehetőséget, akár családi házként, akár nyaralóként, akár üzleti célú bérbeadásra is tökéletes választás. Az ingatlan a hét bármely napján megtekinthetőek előre egyeztetett időpontban!

Jobbágy Zsolt

Jobbágy Zsolt

Ingatlanértékesítő
Siófok
+36 (30) 331 3229
Észrevétel a hirdetéssel kapcsolatban
Egy ingatlanos naplója