Szabadkígyósi kastély mellett kíváló befektetési lehetőség

35962 Nyomtatás Ajánlás Facebook

A település a Tiszántúl délkeleti részén, Békéscsabától 11 kilométerre, a megyeszékhely déli szomszédságában található. További szomszédai: kelet felől Gyula, nyugat felől pedig Újkígyós. A település mellett található a Körös–Maros Nemzeti Park.

Szabadkígyós legfontosabb építészeti remekműve a Wenckheim kastély és kastélypark. Uniós támogatásból teljes felújítást végeznek a kastélyban és a parkban egyaránt, valamint számos új fejlesztés, turisztikai attrakció valósul meg a forrásból. Kiépült a békéscsabai bányatavaktól kiinduló kerékpárút, amely a panzió előtt ér véget. Továbbá az ingatlan mellett közvetlenül, kialakítottak egy kerékpáros szervíz- és pihenő pontot. Mindezek hatására nőtt és folyamatosan nő a turisták, látogatók száma.
A Vadász panzió és étterem kitűnő adottságokkal rendelkezik, óriási lehetőségeket rejt magába.

Főbb jellemzői:
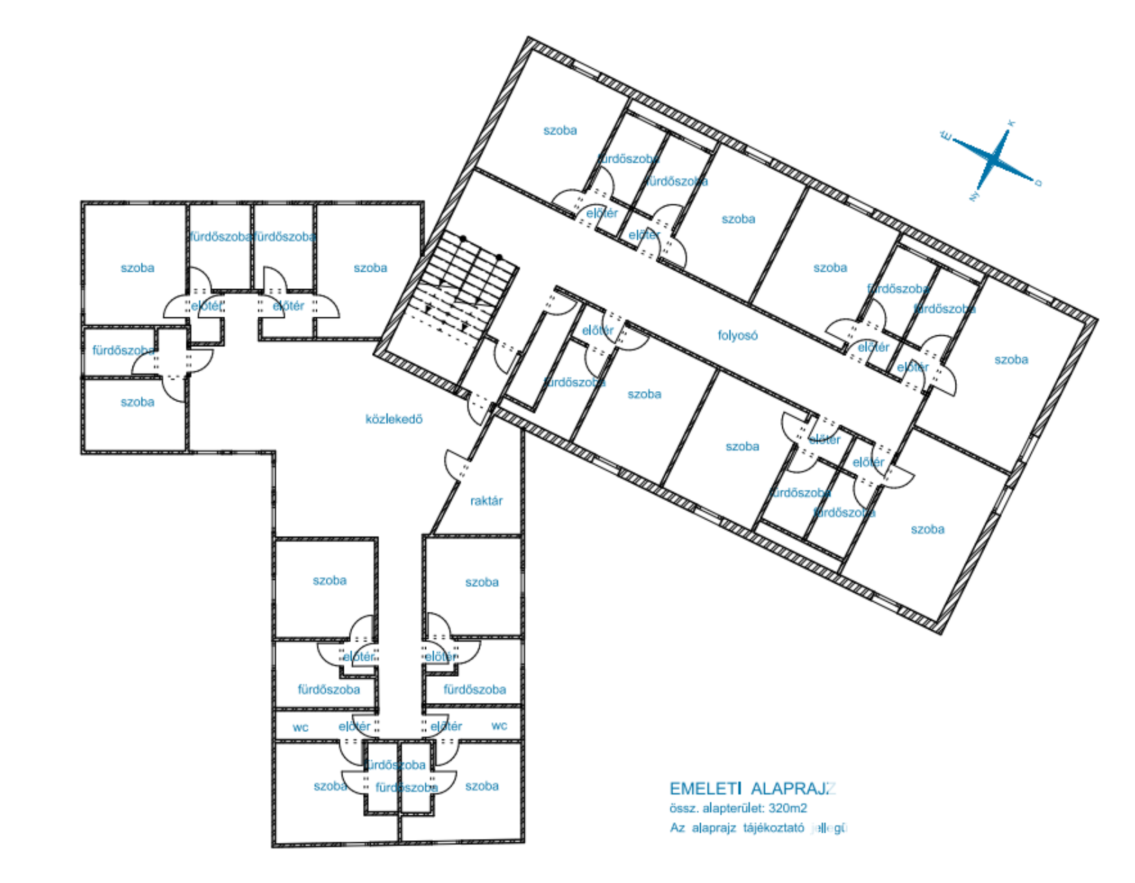
Az emeleti részben 13 szoba kapott helyet 6×2 fő és 7×3 fő elszállásolására alkalmas, zuhanyzóval és wc-vel ellátottak, valamint egy közösségi tér, raktár, háztartási helyiség.
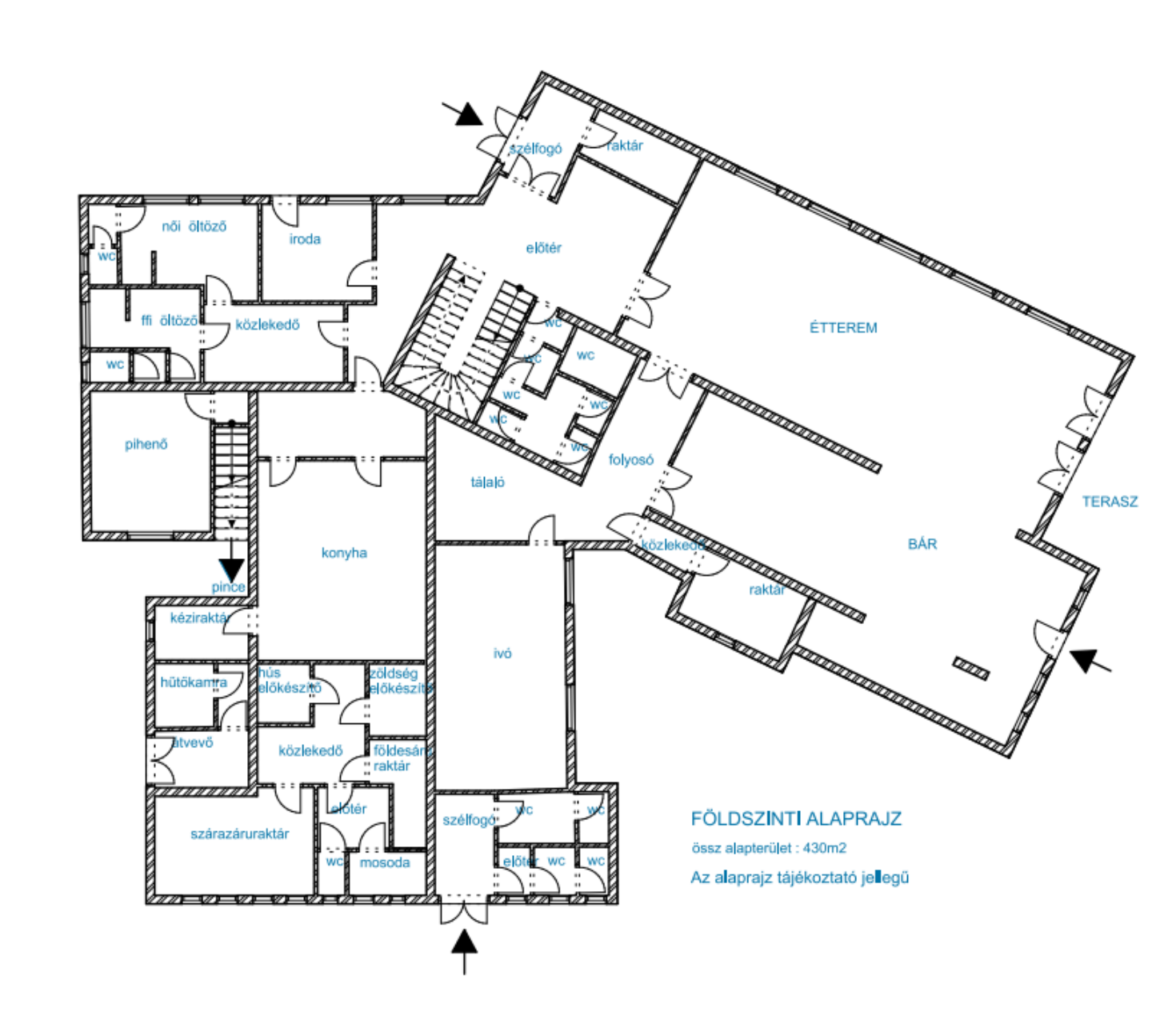
Az alsó részben az étterem 100 fő kiszolgálására lett tervezve, két helyiségből áll, rendezvénytől függően akár el is különíthetőek egymástól. A teraszon 32 főt tudott kényelmesen kiszolgálni a vendéglátó egység.
-Üzemi konyha 2002-ben lett modernizálva, több száz fő étkeztetését tudja kiszolgálni.
-Raktárak, előkészítők, fehér fekete mosogatók, hűtőkamra
-Iroda
-Pihenőszoba, női, férfi öltöző, mosdó, wc
-Előtér
-Ivó (bejárata a másik utcáról nyílik, ezért akár külön üzlethelyiségként is üzemeltethető, kiadható)

Az üzleti célú ingatlan, eredetileg étterem és panzióként üzemelt, de az adottságai alapján más tevékenységre is alkalmas lehet, idősek otthona, üzemi konyha, munkásszálló, rendezvényház, élelmiszer iparágban dolgozó vállalkozások, cukrászat, húsfeldolgozó, cég, üzem céges telephely, vendégház, vadászház, hotel, motel

Az ingatlan magánszemélytől per tehermentesen teljes berendezéssel együtt eladó.

Ha felkeltette érdeklődését az ingatlan, nyugodtan hívjon!
Ügyfeleink számára irodánk teljes jogi hátteret, adás-vétellel kapcsolatos térítésmentes jogi tanácsadást biztosít.
Bank semleges hitelügyintézéssel, díjmentes hitel szűréssel és tanácsadással is hozzájárulunk, hogy megtalálja az ön számára legkedvezőbb megoldást.

Nyistné Rita: +36209363980

Nyist Gáborné Rita

Nyist Gáborné Rita

5 éve a Városi Ingatlaniroda tagja
Ingatlanértékesítő
Békéscsaba
+36 (20) 936 3980
Észrevétel a hirdetéssel kapcsolatban
Egy ingatlanos naplója