Siófok belvárosában a főtéren 591 nm lakóterű ingatlan eladó

17234 Nyomtatás Ajánlás Facebook

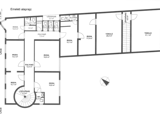
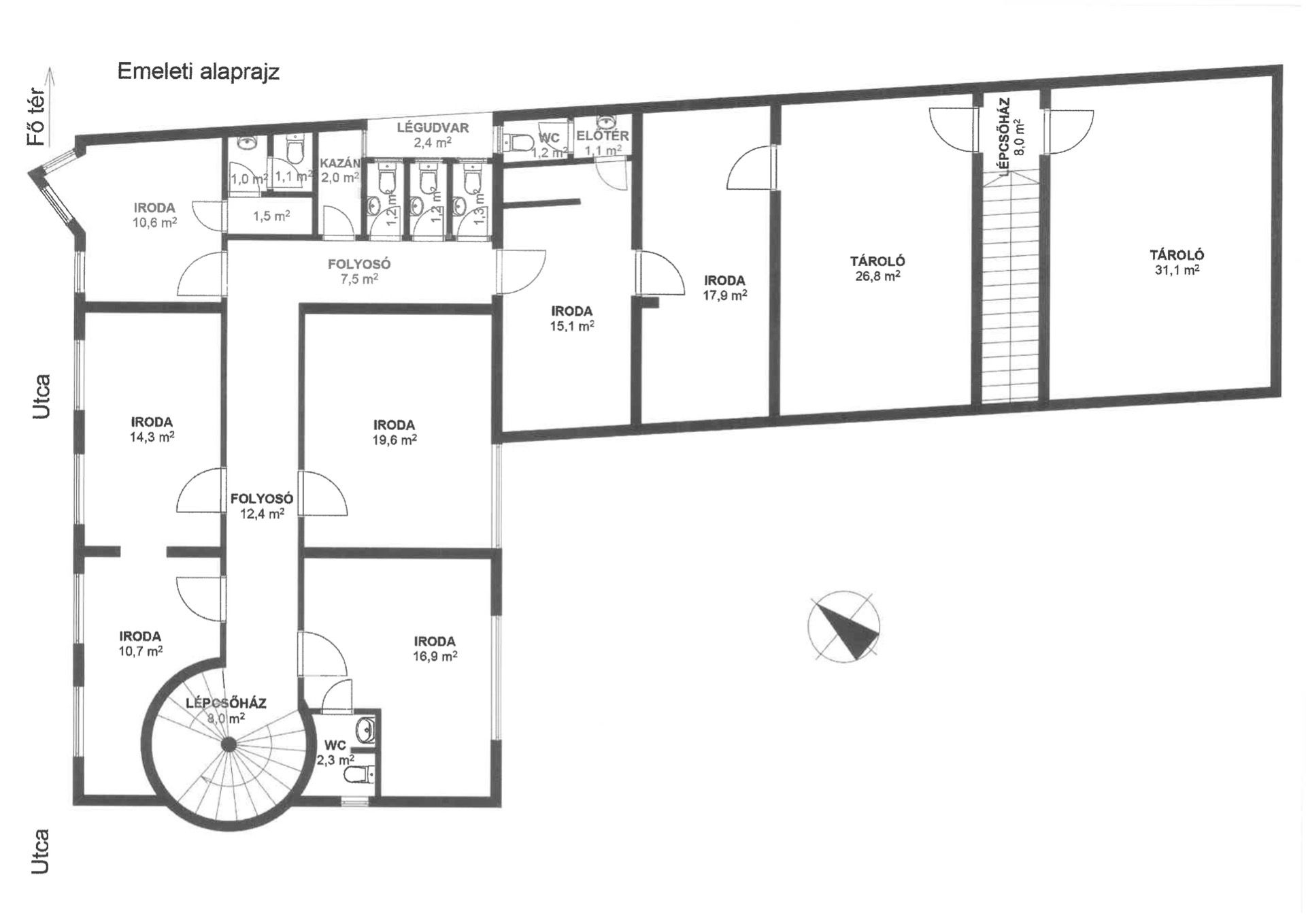
Siófok főterén a víztorony lábánál eladó ez az 591,5 m² hasznos lakótérrel rendelkező társasház méretű épület. Az ingatlan alkalmas lakóháznak, üzletháznak, irodaháznak, hotelnek, társasháznak és szinte minden olyan célra, ahol fontos a frekventált és jól látható elhelyezkedés. A telek mérete 501 m². Az ingatlan a tulajdoni lapon kivett lakóház, udvarként szerepel, per, igény és tehermentes. Az ingatlanban minden közmű, csatorna rendben megtalálható. A három szintes épület teljes felújítást igényel, azonban statikailag kiváló alapanyagnak minősül, így tapasztalattal rendelkező kivitelező számára rengeteg lehetőséget rejt magában. Az ingatlanhoz külön készült egy hotel megvalósítási tervezet, amelyet az érdeklődőknek át tudok adni megtekintésre.

A hasznos lakótérre számított négyzetméter ár 505e Ft / m.

Az épület Siófok történelmi belvárosának ez egy olyan gyöngyszeme, ahol ingatan tulajdont szerezni nem csak, hogy jó befektetés, hanem fejlesztéseket végrehajtva igen komoly értéknövekedés érhető el. Kifejezetten javasolt ezt az ingatlant befektetés és hasznosítási céllal megvásárolni. Az udvarra autóbeállás lehetséges, a környék kiváló. Siófok 25ezres lakosságú város, tulajdonképpen a Balaton fővárosaként tartják számon, ahol a belvárosnak óriási jelentősége van üzleti és turisztikai szempontból is.

Figyelem, a megtekintés és az ártárgyalás a telefonos bejelentkezés sorrendjében történik.

Az ingatlan a hét bármely napján, nappali időszakban rövid telefonos egyeztetést követően megtekinthető.

Hívjon és egyeztessünk időpontot!

In the main square of Siófok, at the foot of the water tower we offer for sale this condominium-sized building of a useful living space of 591.5 square meters. The building is suitable to function as a house to live in, as a mall, an office building, a hotel, an apartment building or for any other purposes where its well-frequented and visible location is an important aspect. The size of the plot is 501 square meters. According to the ownership records the property is categorized as a housing domain and yard being free of all litigation, demand and encumbrances. Within the property all public utilities and sanitation are adequately accessible. The three-storey building needs a complete renovation however its structure proves to be an excellent basis thus providing a great number of possibilities for an experienced constructor.

The price calculated for the useful square meter is 505,000 HUF/m2.

The building itself is such a gem of the historical city centre of Siófok where acquiring a property is not only a good investment but, having the necessary improvements done, a pretty high value increase can be reached as well. It is highly recommended to buy this property with the scope of property investment and utilization. There is parking possibility in the yard, the locality is excellent. Siófok is a city of 25,000 inhabitants, and actually it is considered to be the capital of Lake Balaton where the city centre has a high importance both in terms of business and tourism.

NB: view and price negotiation happens in the order of phone contact.

The property can be viewed on any day of the week after a short daytime telephone consultation.

Call me and let's make an appointment!

Jobbágy Zsolt

Jobbágy Zsolt

Ingatlanértékesítő
Siófok
+36 (30) 331 3229
Észrevétel a hirdetéssel kapcsolatban
Egy ingatlanos naplója