Miklósfán lehetőségekben gazdag, egyedi családi ház

8730 Nyomtatás Ajánlás Facebook

Nagykanizsán nincs még egy ilyen családi ház!!!

Nagykanizsa Miklósfai városrészében, csendes átmenő forgalomtól mentes utcában vált eladóvá, ez a nagy mérettel rendelkező, számos lehetőséget rejtő családi ház. Az ingatlan egy közel 2500m2-es telken került megépítésre 1996-ban. Az építést nézve beton alappal, 35-ös tégla falazattal, Bramac tetőfeddéssel látta meg a napvilágot. A közművek terén 3 fázis került bevezetésre, valamint víz villany és szennyvíz rákötéssel is rendelkezik. Jelenlegi állapotát nézve felújítást igényel, de így magában rejti azon lehetőséget, hogy az új tulajdonosa igényei szerint alakítsa, formálja a belső teret.
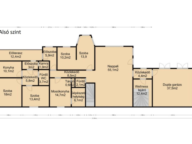
Az épület 3 szintből tevődik össze:
Földszint: 1 nagy négyzetméterű és 1 kis négyzetméretű külön bejáratú lakrész. (Igény szerint akár két generációnak)
Kis lakás helységfelosztása: 2 külön bejáratú szoba, konyha étkező, kamra, előszoba, fürdő.
Nagy ház: 2 közlekedő, előszoba, mosókonyha, kis fürdő, gépészeti helység, nappali közvetlen udvarkapcsolattal, szoba, dupla garázs.
Felső szint: 5 külön bejáratú szoba, közlekedő, 2 fürdő, nagy méretű nappali közvetlen teraszkapcsolattal.
Pinceszint: (megközelítőleg 8m-re a föld alatt) 154m2 - Wellness részleg, nagy méretű medencével, szaunával, merülő medencével, gépészeti helységgel.
A ház fűtését egyedi gáz radiátor szolgáltatják.
Az udvarban való közlekedés térkőburkolaton megoldott. A gépkocsik parkolása dupla garázsban lehetséges.
Ha Ön szeretne egy nagy négyzetméterrel rendelkező, igaz jelenleg felújítandó házat, egyedi wellness kialakítással, ami akár nagycsaládosoknak, akár vállalkozásra is alkalmas lehet, akkor ez az ingatlan kiváló választás lehet.
Kulcs az irodában. Per és tehermenetes!
Iroda: Nagykanizsa Platán sor 7

Hohl József
PRÉMIUM

Hohl József

10 éve a Városi Ingatlaniroda tagja
Régióigazgató
Nagykanizsa
+36 (30) 608 6857
Észrevétel a hirdetéssel kapcsolatban
Egy ingatlanos naplója