Belvárosi egyedi üzlethelység eladó

979 Nyomtatás Ajánlás Facebook

Kizárólag a Városi Ingatlaniroda kínálatában!

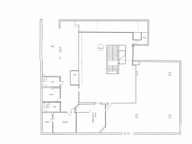
Nagykanizsa belvárosában vált eladóvá ez a számos lehetőséget magában rejtő közel 1000m2-es üzlethelység. Az ingatlan korábban egy szórakozóhelységként üzemelt. Igény szerint ha az új tulajdonosa úgy álmodja meg akkor akár kisebb üzlethelységek is kialakíthatók, melyek könnyen kiadhatók bérbe. Az épület felső szintjén elhelyezkedő helység külön bejárattal rendelkezik.
A közlekedési kapcsolatok kitűnőek, így a helyszín könnyen megközelíthető mind gyalogosan, mind tömegközlekedéssel. További kényelmet nyújt, hogy az épület udvari része gépjárműbeállási lehetőséget biztosít, ami különösen előnyös a mindennapi ügymenet szempontjából.
Az épület teljes tetőszigetelése pár éve megtörtén. A biztonságról riasztórendszer gondoskodik.
A helységek fűtéséről egyedi gáz cirkó kazán gondoskodik radiátorok segítségével.
Ez az ingatlan nagyszerű lehetőség mindazok számára, akik egy jól megközelíthető, tágas és sokoldalú üzlethelyiséget keresnek Nagykanizsa központjában. Ne hagyja ki ezt a remek ajánlatot!
Iroda: Nagykanizsa Platán sor 7

Hohl József
PRÉMIUM

Hohl József

10 éve a Városi Ingatlaniroda tagja
Régióigazgató
Nagykanizsa
+36 (30) 608 6857
Észrevétel a hirdetéssel kapcsolatban
Egy ingatlanos naplója